Tel: 04141 – 410 33 00

 Mobil 0177 – 94 15 778

Exklusives KfW-55-Neubau-Reihenhaus in Stade – 5,5 Zimmer, ca. 130 m², modern & bezugsfertig ab 01.06.2026
21680 Stade, Reihenmittelhaus zur Miete
Haus

Objektart

5.5

Zimmer

130

Stade

Ort

Objektdaten

Objekt-ID
1253
Objekttypen
Haus, Reihenmittelhaus
Adresse
21680 Stade
Etagen im Haus
3
Wohnfläche ca.
130 m²
Grund­stück ca.
162 m²
Zimmer
5,5
Schlafzimmer
4
Badezimmer
2
Separate WC
1
Terrassen
1
Wesentlicher Energieträger
Pellet
Baujahr
2026
Zustand
Erstbezug
Verfügbar ab
01.06.2026
Kaution
3.380,00 EUR
Kaltmiete
1.690,00 EUR
Nebenkosten
298,00 EUR
Heizkosten
in der Warmmiete enthalten
Warmmiete
2.068,00 EUR (Heizkosten enthalten)

Beschreibung

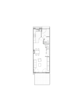
Erstbezug! Diese exklusiven Reihenmittelhäuser erfüllen den modernen KfW-55-Standard und werden vollständig aus regional erzeugter, erneuerbarer Energie versorgt – nachhaltig, hocheffizient und zukunftssicher. In einer begehrten Lage von Stade entstehen insgesamt 36 hochwertige Neubau-Reihenhäuser, die durch clevere Architektur, erstklassige Materialien und ein zeitloses Design überzeugen. Ob als Reihenmittelhaus oder Reihenendhaus – hier finden Familien, Paare und alle, die Wert auf Stil und Wohnkomfort legen, ein lichtdurchflutetes Zuhause mit großzügigen Räumen und moderner Ausstattung. Auf ca. 130 m² Wohnfläche, verteilt auf drei Etagen, bietet das Haus Typ 128 SD 35 ein Raumangebot, das keine Wünsche offenlässt. Beim Betreten der Immobilie empfängt Sie ein etwa 5 m² großer Eingangsbereich, der genügend Platz für eine Garderobe bietet. Von hier aus gelangen Sie sowohl in das moderne Gäste-WC (ca. 3 m²) als auch direkt in den großzügigen Wohn- und Essbereich. Der offen gestaltete Wohn- und Essbereich (ca. 32 m²) ist das Herzstück des Hauses und überzeugt durch seine großzügige Raumwirkung, helle Fensterfronten und vielfältige Einrichtungsmöglichkeiten – hier findet ein großes Sofa, ein Essbereich und vieles mehr seinen perfekten Platz. Die offen gehaltene Küche (ca. 7 m²) fügt sich harmonisch in den Wohnbereich ein und bietet ideale Voraussetzungen für gemeinsames Kochen. Vom Wohn- und Essbereich führt eine große Terrassentür auf die große Terrasse (ca. 6 m²), die in den privaten Garten übergeht. Über die Treppe gelangen Sie in das erste Obergeschoss. Hier verbindet ein großer Flur (ca. 6 m²) alle Räume. Auf dieser Etage befinden sich ein großes Elternschlafzimmer (ca. 17 m²), ein Kinderzimmer (ca. 13 m²) sowie ein hochwertig ausgestattetes Badezimmer (ca. 6 m²) mit Badewanne und eleganter Walk-In-Dusche mit Glastür, das modern, stilvoll und zeitlos gestaltet ist. Zusätzlich gibt es auf dieser Ebene einen praktischen Abstellraum mit Waschmaschinen- und Trockneranschluss (ca. 2 m²). Das vollständig ausgebaute Dachgeschoss eröffnet weitere Möglichkeiten und eignet sich ideal für größere Kinder, Homeoffice oder Gäste. Ein kleiner Flur mit rund 3 m² verbindet die Räume. Hier stehen zwei weitere Zimmer (ca. 15 m² und ca. 14 m²) zur Verfügung sowie ein modernes Duschbad (ca. 3 m²). Die hochwertige Ausstattung überzeugt auf ganzer Linie: Fußbodentemperierung für angenehmen Wohnkomfort, elektrische Rollläden (im Erdgeschoss) für mehr Privatsphäre, dreifachverglaste Fenster, eine doppelte Trennwandkonstruktion für optimale Schalldämmung sowie eine Wohnraumlüftungsanlage gehören zum Standard. Das Haus verfügt über einen Stellplatz mit zukunftsorientierter E-Mobilitätsvorbereitung, eine moderne Netzwerkverkabelung sowie gepflegte Außenanlagen. Die private Gartenfläche von ca. 162 m² lädt zu entspannten Abenden, geselligen Grillrunden oder als Spielbereich für Kinder ein. Zwei PKW-Stellplätze können optional dazugebucht werden; sie sind in der Warmmiete bereits berücksichtigt. Die Miete pro Stellplatz beträgt monatlich 40 €. Eine Einbauküche ist nicht im Angebot enthalten – so haben Sie die Möglichkeit, Ihre Küche ganz nach Ihren eigenen Vorstellungen zu gestalten. Ihre möglichen Optionen: Haus Nr. 2 inkl. Duschbad im DG / ca. 162 m² Grundstück - 1.690 € Kaltmiete Haus Nr. 3 inkl. Duschbad im DG / ca. 162 m² Grundstück - 1.690 € Kaltmiete Haus Nr. 16 ohne Duschbad im DG / ca. 183 m² Grundstück - 1.560 € Kaltmiete Haus Nr. 17 ohne Duschbad im DG / ca. 184 m² Grundstück - 1.560 € Kaltmiete Wir freuen uns auf Ihre Anfrage! Der Energieausweis ist nach Fertigstellung verfügbar.

Ausstattung

  • Erstbezug zum 01.06.2026
  • Energieeffizient: KfW-55-Standard, zu 100 % aus regenerativer Energie
  • Nachhaltig & zukunftssicher: Hohe Energieeffizienz und innovative Haustechnik
  • Ca. 130 m² auf drei Etagen
  • Fußbodentemperierung: Für behaglichen Wohnkomfort im Erdgeschoss
  • Elektrische Rollläden im Erdgeschoss: Für Komfort und Privatsphäre
  • Fenster: Dreifachverglasung für optimale Dämmung und Helligkeit
  • Schallschutz: Doppelte Trennwandkonstruktion für ruhiges Wohnen
  • Bodenbelag: Laminat inkl. Trittschall
  • moderne Accessoires in den Sanitärräumen
  • Wohnraumlüftung
  • E-Mobilitätsvorbereitung: Zukunftsorientierte Ausstattung für je einen Stellplatz pro Haus
  • Netzwerkverkabelung: Modern und zukunftssicher
  • PKW-Stellplätze: Zwei Stellplätze optional buchbar, je 40 € monatlich, in der Warmmiete enthalten
  • Exklusive Neubauqualität: Hochwertige Materialien, zeitloses Design, durchdachte Architektur
  • Flexibilität bei Küche: Einbauküche nicht enthalten – individuell
  • Außenanlagen: Gepflegt und ansprechend gestaltet, ideal für Familien, Freizeit und Entspannung
  • ausgebauter Dachspitz für zusätzlichen Stauraum

Ausstattungsmerkmale

  • Kein Keller
  • Separates WC
  • Terrasse

Lage

Die Bronzeschmiede in 21680 Stade bietet eine außergewöhnlich attraktive Wohnlage in einem ruhigen, gepflegten Wohngebiet, das ideal für Familien, Pendler und alle ist, die eine Kombination aus entspanntem Wohnen und hervorragender Erreichbarkeit suchen. Die Straße selbst ist eine angenehme Anliegerstraße mit wenig Verkehr und einem harmonischen Umfeld, das von modernen Reihenhäusern und einer freundlichen Nachbarschaft geprägt ist. Einkaufsmöglichkeiten, Ärzte, Apotheken, Schulen und alle wichtigen Einrichtungen des täglichen Bedarfs befinden sich in kurzer Entfernung, sodass alle Wege bequem und schnell erledigt werden können. Gleichzeitig ist die historische Altstadt von Stade mit ihren charmanten Gassen, gemütlichen Cafés, dem Hafen und dem maritimen Flair in wenigen Minuten erreichbar und bietet ideale Möglichkeiten für Freizeit, Genuss und Kultur. Die Verkehrsanbindung ist hervorragend: Der Bahnhof Stade mit S-Bahn und Regionalzug-Anschluss Richtung Hamburg und Cuxhaven liegt gut erreichbar, wodurch sich die Bronzeschmiede perfekt für Pendler eignet. Auch die überregionalen Verkehrswege sind schnell erreicht, was Flexibilität und Mobilität auf hohem Niveau garantiert. Die Lage verbindet Wohnen in ruhiger, angenehmer Atmosphäre mit allen Vorzügen einer gewachsenen Stadtstruktur – ein Umfeld, das sowohl Erholung bietet als auch urbanen Komfort liefert. Wer hier lebt, genießt eine ausgewogene Mischung aus moderner Infrastruktur, naturnaher Wohnqualität und direkter Nähe zur lebendigen Altstadt von Stade – ein absolut überzeugender Standort für ein Reihenhaus, der sowohl praktisch als auch lebens- und liebenswert ist.

Karte

Sie sehen gerade einen Platzhalterinhalt von Google Maps. Um auf den eigentlichen Inhalt zuzugreifen, klicken Sie auf die Schaltfläche unten. Bitte beachten Sie, dass dabei Daten an Drittanbieter weitergegeben werden.

Mehr Informationen

Energieausweis

PDF Exposè Download (ca. 5MB)
Immobilienmakler Stade

Wir schaffen Raum für Ihre Zukunft

Schölischer Str. 5 | 21682 Stade
Telefon: 04141 – 410 33 00
Mobil: 0177 – 94 15 778
info@immobilien-stade-mb.de

Schreiben Sie uns eine Nachricht

* Pflichtangaben
 SSL-verschlüsselt

Sonstiges

Unsere "Allgemeinen Geschäftsbedingungen" sind Grundlage dieses Angebotes. Wir weisen nochmals daraufhin, dass wir die Angaben vom Eigentümer erhalten haben. Die Immobilien- Vermittlung Mandy Brockelmann haftet weder für die Richtigkeit und Vollständigkeit übernommener Angaben noch für die Richtigkeit weiterer Angaben. Wir weisen darauf hin, dass bei Inanspruchnahme unserer Dienste ein Maklervertrag mit uns zustande kommt.Eine Vorkenntnis des o.g. Objektes schließen wir aus, wenn Sie uns nicht innerhalb von acht Tagen nach Zugang dieses Exposés einen Nachweis erbringen, dass Ihnen dieses Objekt bereits bekannt war. Die von uns versandten Unterlagen sind streng vertraulich und dürfen ohne unsere Einwilligung nicht weitergegeben werden. Eine Weitergabe ohne unsere Einwilligung löst Schadensersatzansprüche gemäß unseren "Allgemeinen Geschäftsbedingungen" aus. Alle Angebote sind unverbindlich und freibleibend (Zwischenkauf vorbehalten).